Rehabilitación y ampliación de Chalet de montaña, Megève (Francia)

2020
Image
Image
Image
Image

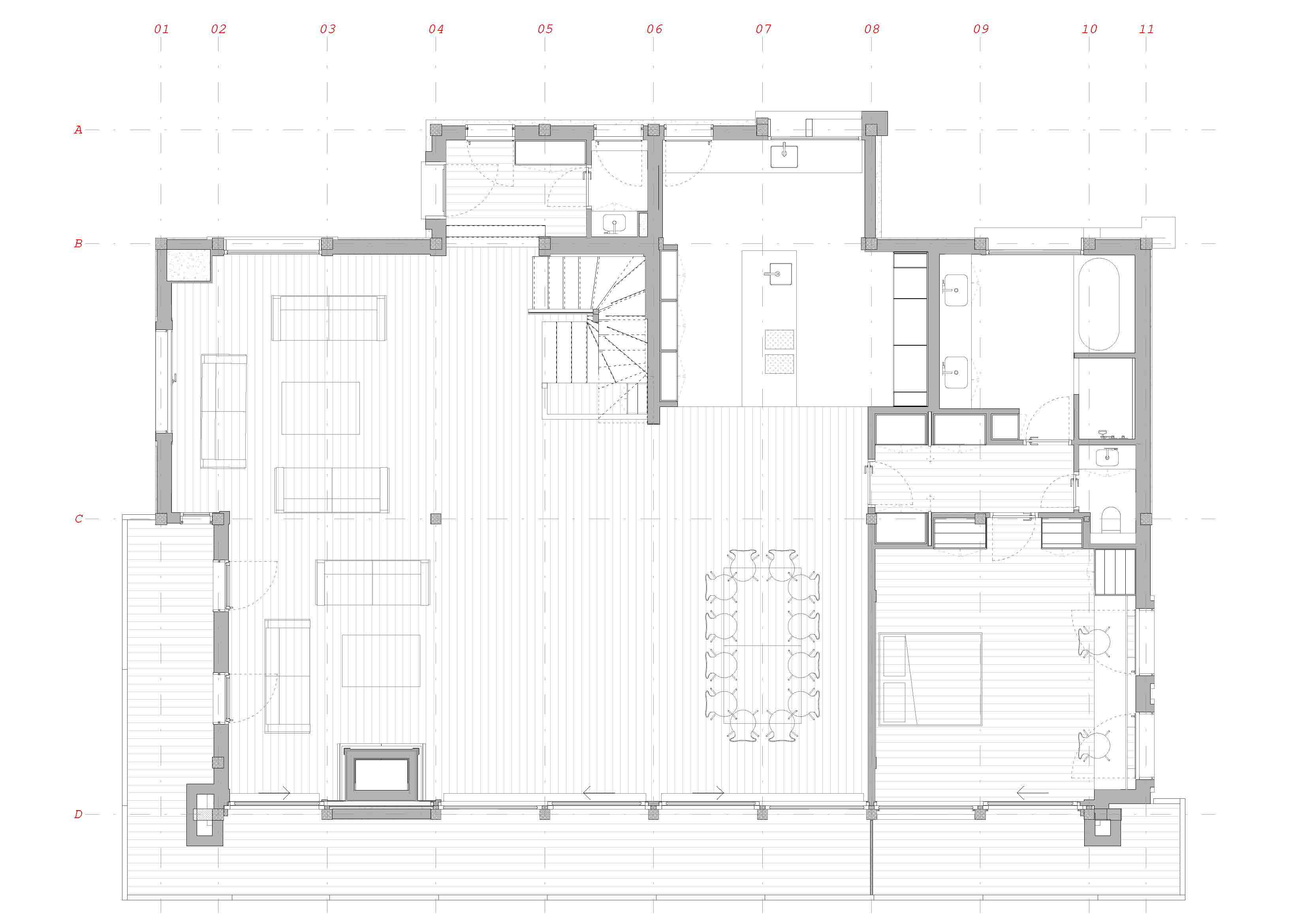
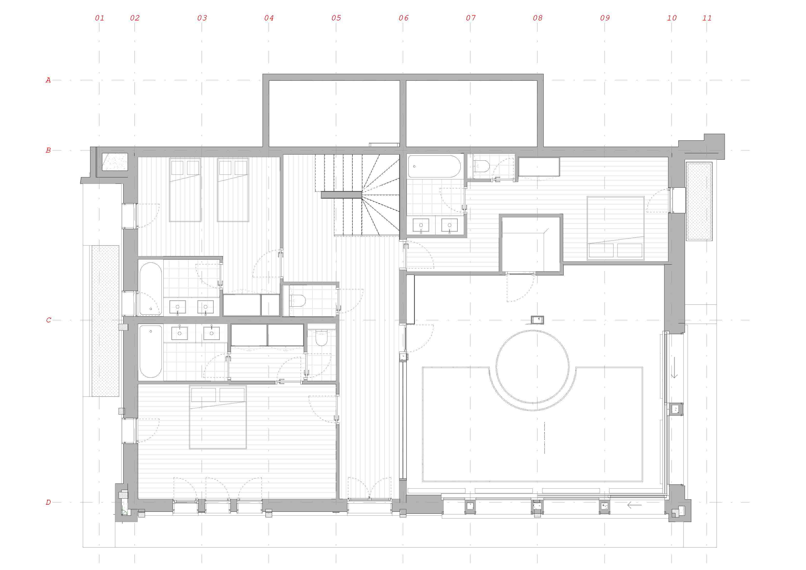
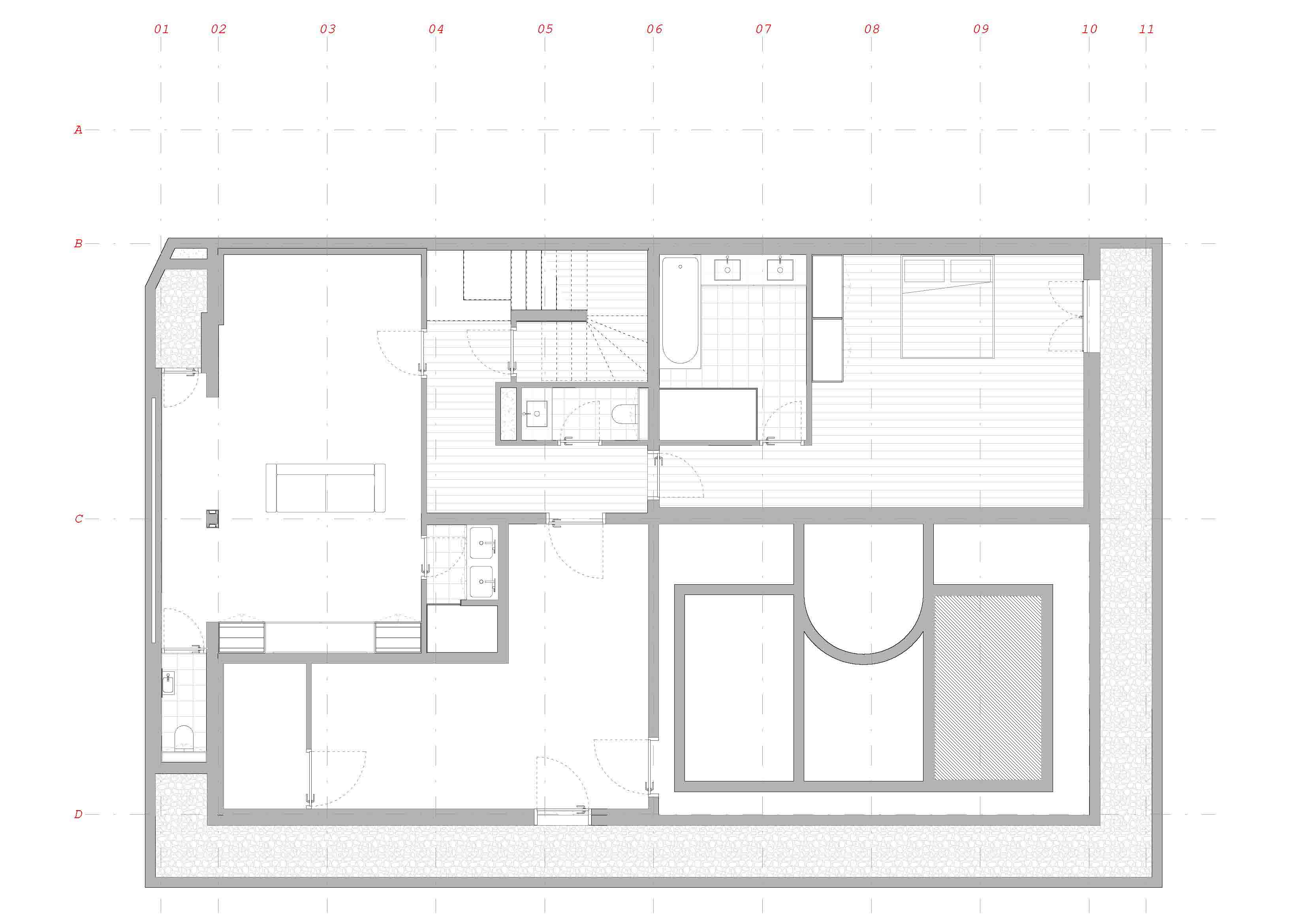
El proyecto, actualmente organizado en cuatro alturas, busca la renovación de la estética tradicional de los chalets de montaña y la apertura de los espacios al exterior. El nivel inferior, iluminado a través de un patio inglés recoge los principales espacios de servicio y un espacio polivalente como sala de cine o dormitorio de invitados. A cota de jardín se articulan los dormitorios y la piscina interior. Esta última amplía sus huecos destacando la naturaleza en sus grandes ventanales. El nivel principal experimenta la mayor transformación, el altillo queda relegado a un balcón interior sobre la cocina y el dormitorio principal que abre su vista a las dobles alturas de los salones y el comedor. Este gran espacio culminado por la cubierta a dos aguas libera su fachada principal de cerramientos dejando una transición transparente de vidrio entre el exterior y el interior. La luz, la naturaleza y las vistas de montaña, que antes quedaban ocultas tras voladizos y cerramientos, ahora se integran y forman parte del edificio.

Arquitectos:

Cliente: Promotor privado

Categorías: Rehabilitación

País: Francia

Presupuesto: 1000000 €

Superficie: 560 M2

Año Ejecución: 2020

Plano Plano Plano Plano Plano