Rehabilitación de vivienda unifamiliar, Camposancos (Galicia)

2021
Image
Image
Image
Image
Image
Image
Image
Image
Image
Image
Image
Image
Image
Image
Image
Image
Image
Image
Image
Image
Image
Image
Image
Image
Image

Arquitectos: Beriot Bernardini Arquitectos

Cliente: Promotor privado

Categorías: Rehabilitación

País: España

Presupuesto: 50000 €

Superficie: 170 M2

Año Ejecución: 2021

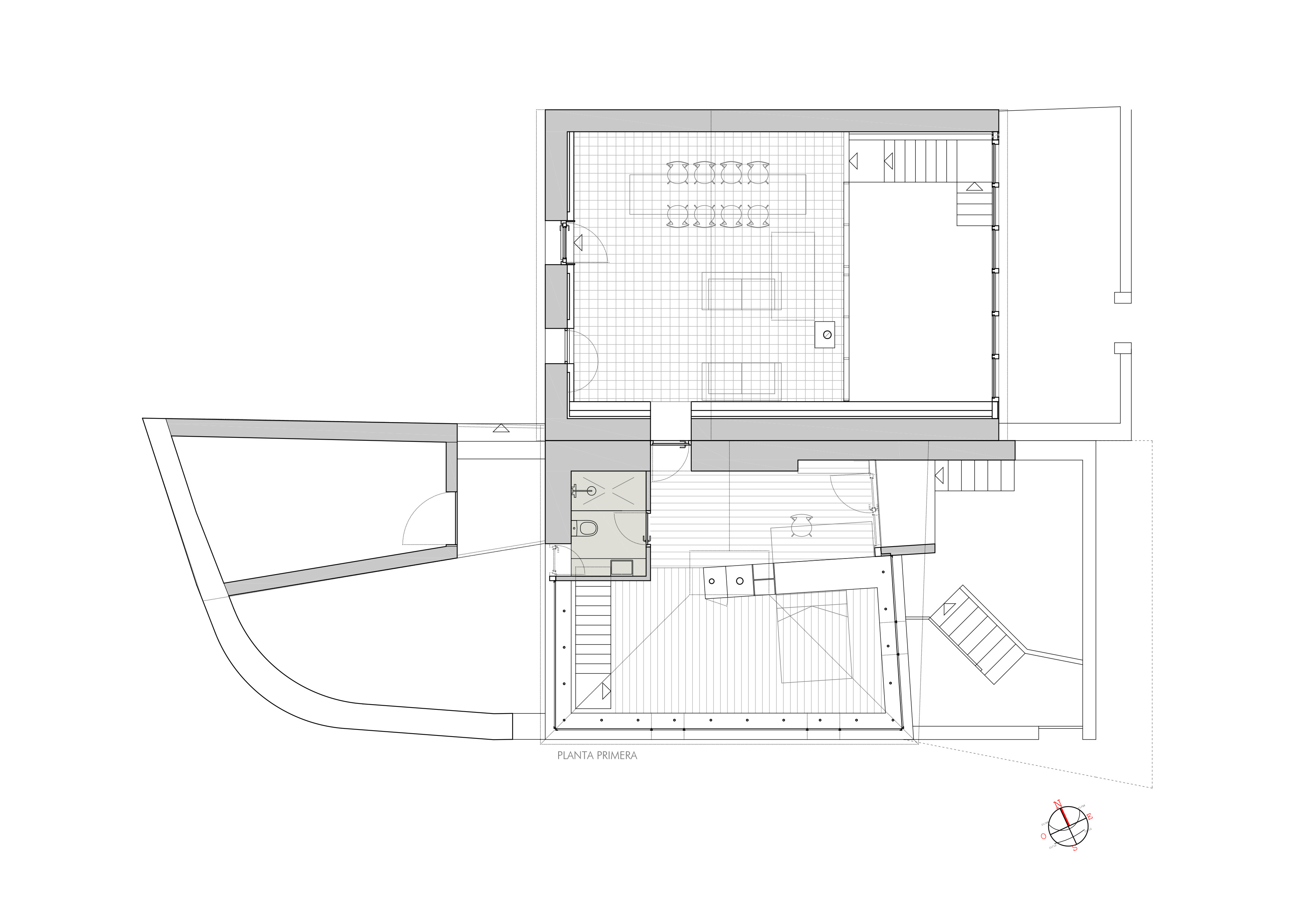
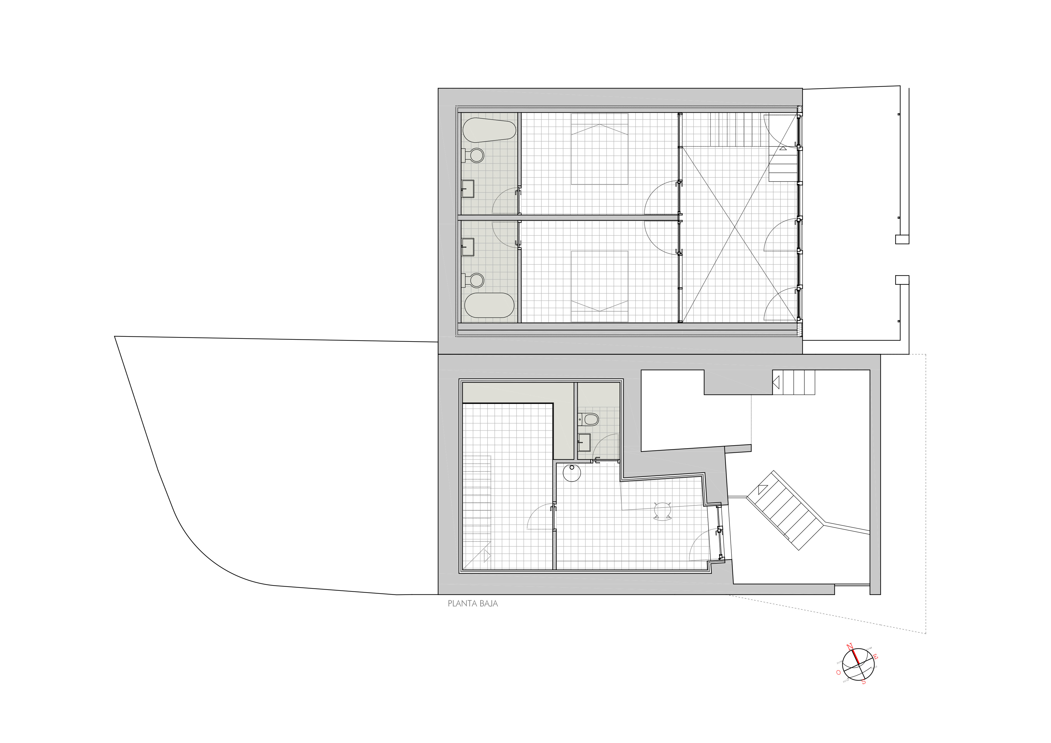
Plano Plano Plano