Reforma De Vivienda, Barrio Universidad (Madrid)

2010
Image
Image
Image

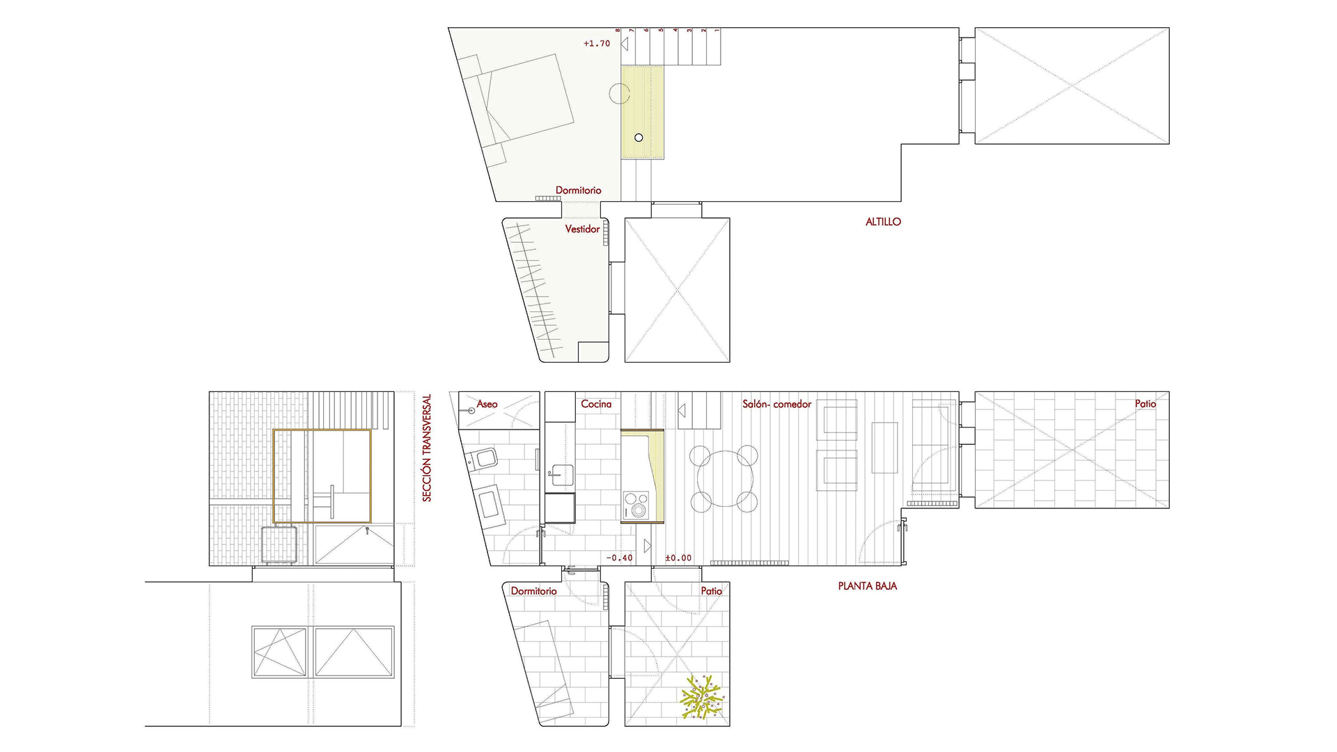
El proyecto desarrolla la reforma de una vivienda de 37m2 situada en el casco histórico de Madrid. La ubicación de la vivienda en planta baja del edificio permitió excavar 40cm al fondo, ganando la altura suficiente para la realización de un altillo para dormitorio bajo el que se disponen baño y cocina. El elemento clave del proyecto es una pieza realizada en tablero de madera laminada y encolada de 50mm de espesor que sirve simultáneamente de soporte del altillo, encimera de la cocina, y mesa- barandilla en el altillo.

Arquitectos:

Cliente: Promotor Privado

Categorías: Reformas

País: España

Presupuesto: 27000 €

Superficie: 37 M2

Año Ejecución: 2010

Plano Plano