Reforma De Vivienda, Barrio Guindalera (Madrid)

2008
Image
Image
Image
Image
Image
Image
Image
Image
Image
Image
Image
Image
Image
Image
Image
Image
Image
Image

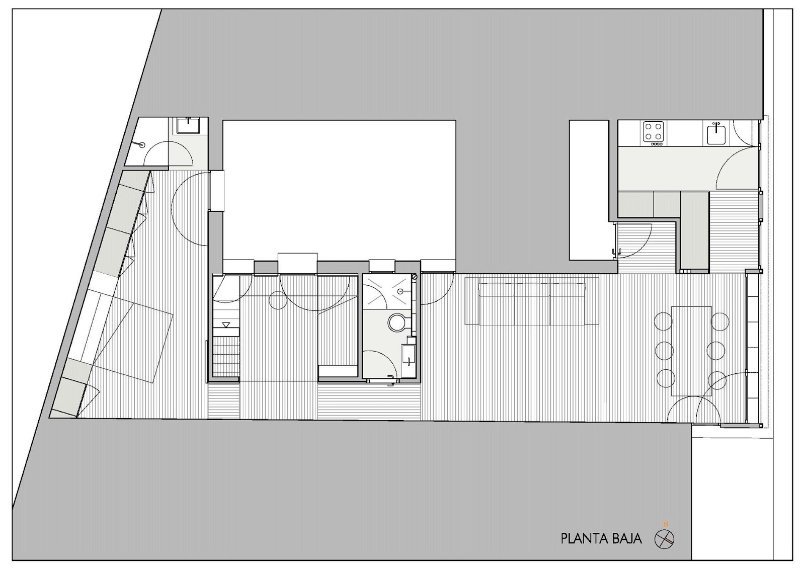
El proyecto desarrolla la reforma integral de un ático de 75m2 y su espacio bajo cubierta, situado en Madrid. El programa requería, como características distintivas, un dormitorio convencional y otro de uso esporádico por el hijo del propietario; privilegiar el espacio de la cocina, bien iluminada y aislada del resto de la vivienda, para desarrollar su afición culinaria, y la puesta en valor de la biblioteca del propietario. El espacio de vida se configura por el generoso volumen bajo cubierta y la fuerte presencia de las librerías, una dispuesta bajo el ventanal corrido y otra colgada de cubierta. Enmarcado por éstas, un espacio con techo plano junto al ventanal acoge la mesa que servirá de comedor y estudio. La cocina se dispone de forma independiente en fachada, conformando con ella el acceso a la vivienda y un espacio intermedio de limpieza. La habitación del hijo se abre generosamente al pasillo mediante una puerta corredera, de forma que pueda expandirse para ocupar éste cuando está en uso a la vez que lo acorta e ilumina; se pretende evitar también la incómoda sensación de habitación vacía durante las ausencias del hijo. Se aprovecha la altura hasta cubierta para disponer un pequeño altillo que, sirviendo inicialmente de almacenamiento, será la zona de cama cuando crezca.

Arquitectos:

Cliente: Promotor privado

Categorías: Reformas

País: España

Superficie: 75 M2

Año Ejecución: 2008

Plano Plano