Reforma De Oficina, Cronos (Madrid)

2017
Image
Image
Image
Image
Image
Image
Image

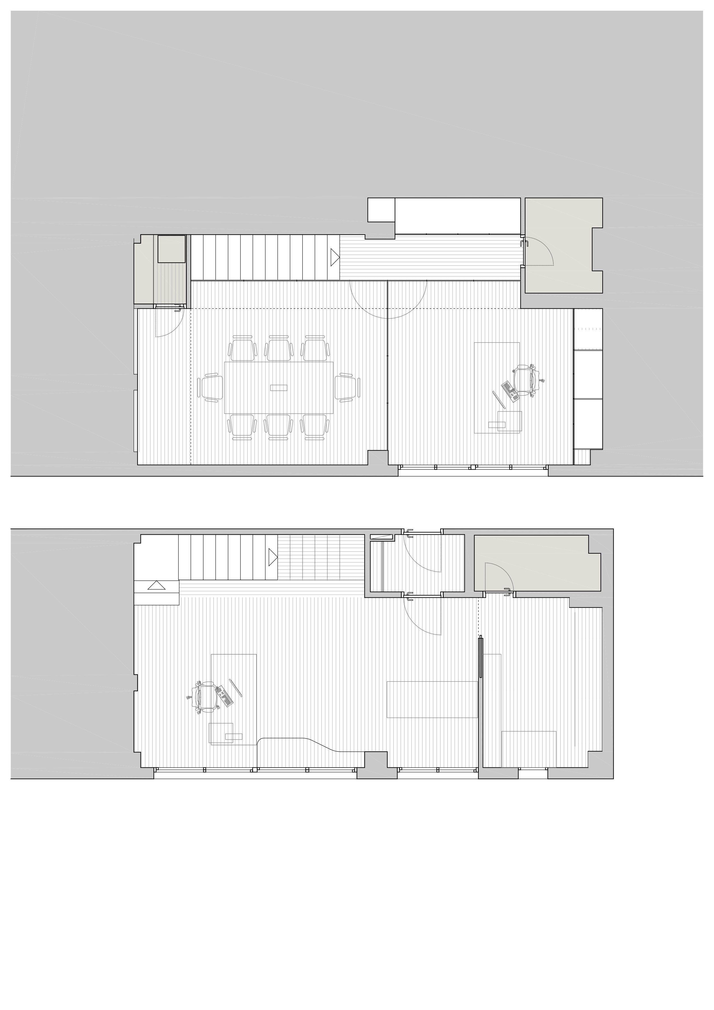
El proyecto desarrolla la reforma de unas oficinas en dos alturas en la ciudad de Madrid. La idea en la que se enclavó el proyecto fue la disposición de espacios abiertos destinados al trabajo colaborativo, diferenciados mediante cerramientos de vidrio.

Arquitectos:

Cliente: Promotor privado

Categorías: Reformas

País: España

Presupuesto: 45350 €

Superficie: 95 M2

Año Ejecución: 2017

Plano