Reforma De 2 Viviendas, Barrio Recoletos (Madrid)

2019
Image
Image
Image
Image
Image
Image
Image
Image
Image
Image
Image
Image
Image
Image
Image
Image

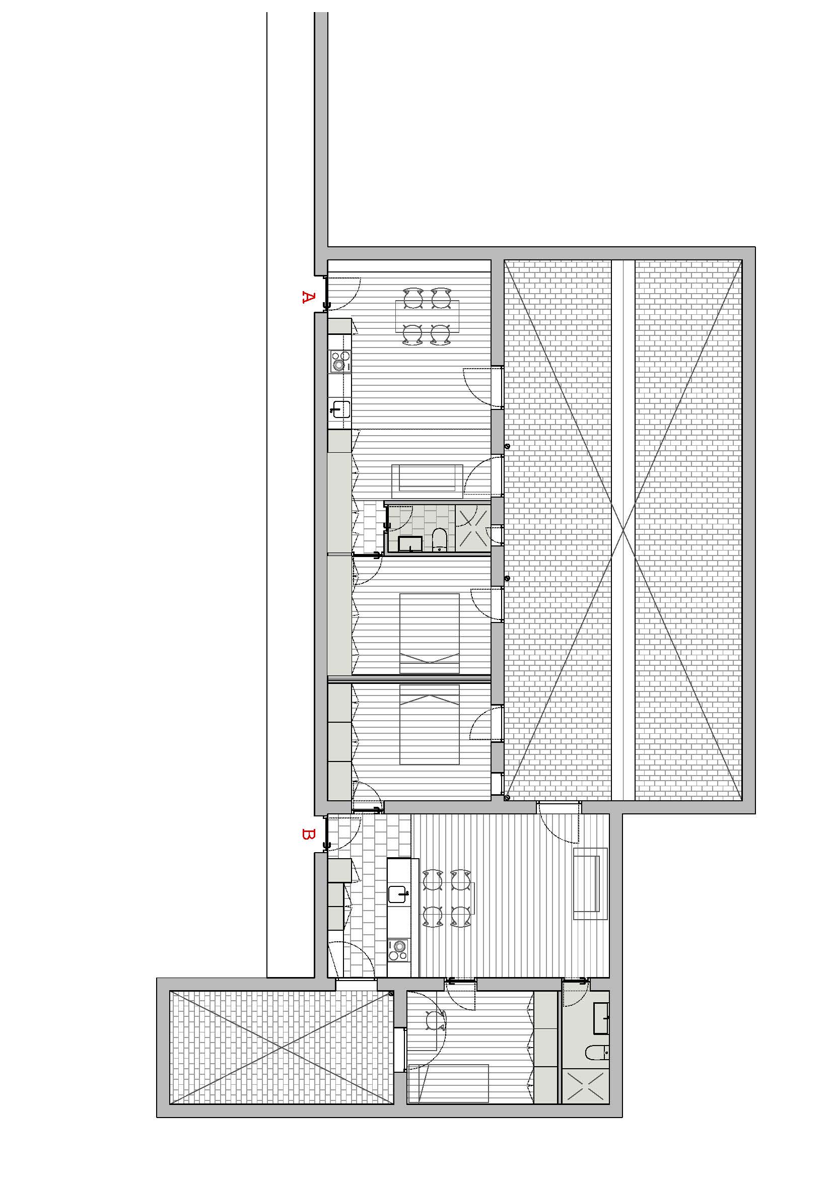
El proyecto acomete la conversión de la antigua vivienda del portero en dos viviendas en un edificio emblemático de la calle Velázquez. Como condicionante de partida se dispone de una superficie reducida en planta baja con huecos a patio interior. Se plantea desarrollar un programa completo de viviendas con cocina, baño, estar y dormitorio independente. En ambos casos la estrategia es optimizar las ventanas existentes para la captación de luz y generar un espacio exterior ajardinado en el patio de uso privativo En la primera de ellas, de menor tamaño, se formaliza una banda de cocina y almacenamiento que da continuidad entre el salón y el dormitorio separando los espacios con un volumen de baño. Aprovechando la altura libre se generan dos altillos, uno sobre el estar que da servicio a modo de estudio y otro sobre el baño que está destinado a almacenaje e instalaciones. La segunda vivienda, por morfología, permite una distribución de dos dormitorios y un baño que abren aun espacio central con doble altura. En este caso la cocina queda delimitada espacialmente por un altillo que otorga mayor superficie a la vivienda.

Arquitectos:

Cliente: Promotor privado

Categorías: Reformas

País: España

Presupuesto: 100000 €

Superficie: 103 M2

Año Ejecución: 2019

Plano