Student housing, General Moscardó (Madrid)

2015
Image
Image
Image
Image
Image
Image
Image
Image
Image
Image
Image
Image
Image
Image

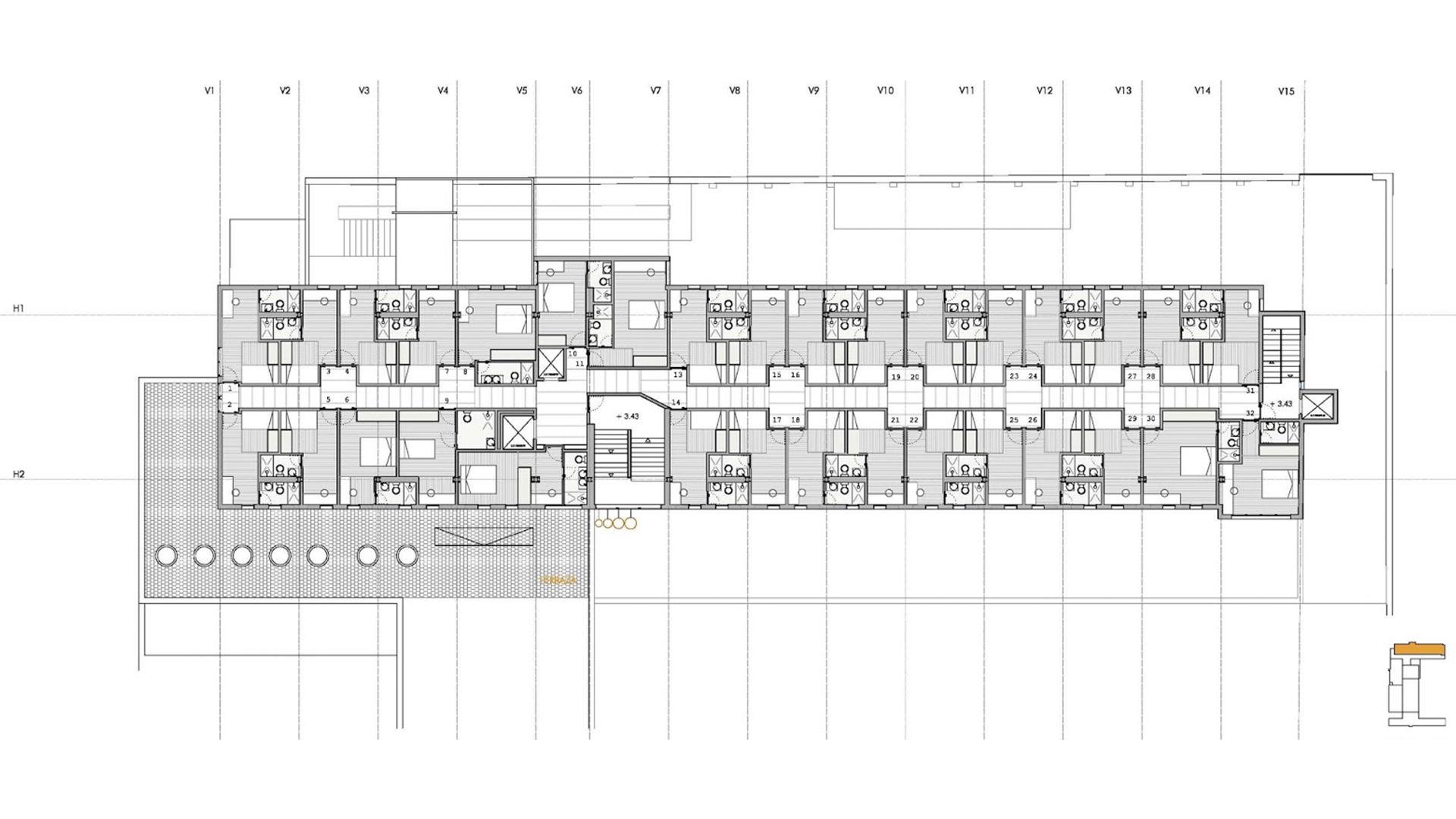
El volumen dedicado a residencia objeto del presente proyecto es un volumen sensiblemente rectangular, de 65 x 12,5m, constando de planta semisótano, y planta baja más seis sobre rasante. El programa dispone en planta baja recepción, control y usos comunes: cafetería, en el extremo Oeste y con acceso doble desde la residencia y desde el exterior para ampliar sus posibilidades de explotación, y salas comunes (televisión, reuniones, estudio, etc.). El resto de plantas se destinan a habitaciones. El objetivo prioritario del proyecto es el cuidado diseño de la habitación tipo, que constituye al fin y al cabo el producto base de la explotación; el éxito de la residencia pasa en todo caso por el acierto en la resolución de este elemento, que debe permitir la ocupación prolongada que prevé el modelo de explotación de forma agradable y cómoda. Se ha buscado la repetición máxima del módulo tipo, buscando obtener con ello una reducción de los costes, los plazos y facilidad de ejecución. En los puntos de la planta donde aparecen distorsiones por la presencia de los núcleos de circulación se introducen modificaciones de la habitación tipo que dan lugar a las habitaciones dobles.

Architects: Beriot Bernardini Arquitectos

Client: Privado

Categories: Building Refurbishments

Project Type: Residencial Colectivo / Residencia Universitaria

Country: Spain

Surface: 4450 M2

Execution Year: 2015

Plano