Reforma De Vivienda, Ortega Y Gasset (Madrid)

2012
Image
Image
Image

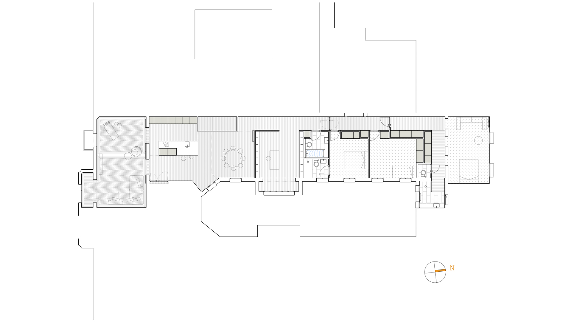
The project deals with the renovation of a 200m2 apartment in Madrid. About half of the apartment, corresponding to day-use spaces, conserved the original ceiling mouldings and wooden floors. The project proposed to maintain these elements while opening up the plan, originally divided into rooms and corridors, to obtain one large and only living area. This is achieved by cutting the existing walls at a certain height, leaving on the ceiling part of their footprint and the mouldings, like vaults or canopies defining specific places inside the greater space; entrance, kitchen and dining area are defined in this way. The rest of the apartment, without any pre-existing elements of interest, is organized simply, setting a great suite at the back with open bathroom and dressing area in what was previously circulation space. Special attention was also set on reducing the “long corridor” effect.

Architects: Beriot Bernardini Arquitectos

Client: Promotor Privado

Categories: Apartment Renovations

Project Type: Piso

Country: Spain

Budget: 160000 €

Surface: 200 M2

Execution Year: 2012

Plano