Récollets Cultural Centre, Saint-Jean-De-Luz (France). Competition 1st Price

2022
Image
Image
Image
Image

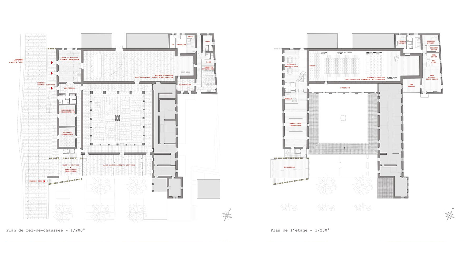
El proyecto contempla la rehabilitación y ampliación del antiguo Convento de Récollets en la península de Récollets, un sitio con un paisaje muy característico de la Bahía de San Juan de Luz, para un uso cultural: sala de conciertos y conferencias; museo y centro de Interpretación del Patrimonio y Sala de Exposiciones. La ampliación se convierte en un pórtico ligero y permeable, recordando la huella del cuerpo antiguo del refectorio que ha desaparecido, con una perspectiva que genera una lectura ambigua de sus dimensiones. Arriba, el mirador abierto ofrece una vista privilegiada de la ciudad de Ciboure y de la bahía de San Juan de Luz.

Architects: Beriot Bernardini Arquitectos / Arc & Sites Architectes Du Patrimoine

Client: Comunauté de Comunes Ciboure- Saint Jean de Luz

Categories: Listed Buildings

Project Type: Cultural

Country: France

Budget: 3495000 €

Surface: 1260 M2

Execution Year: 2022

Plano Plano Plano