16 Viviendas, Atocha (Madrid)

2003
Image
Image
Image
Image
Image
Image
Image
Image
Image
Image

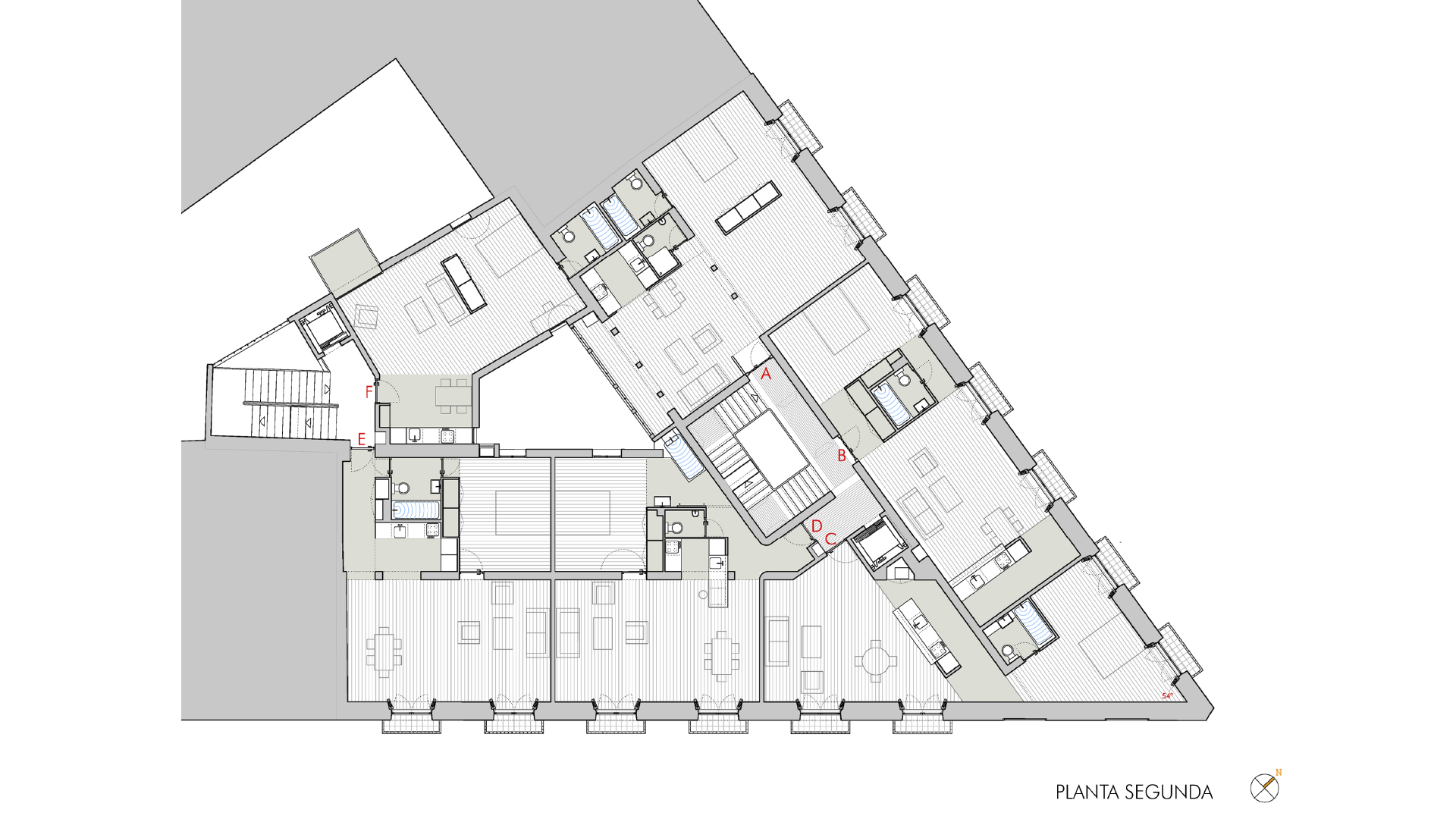
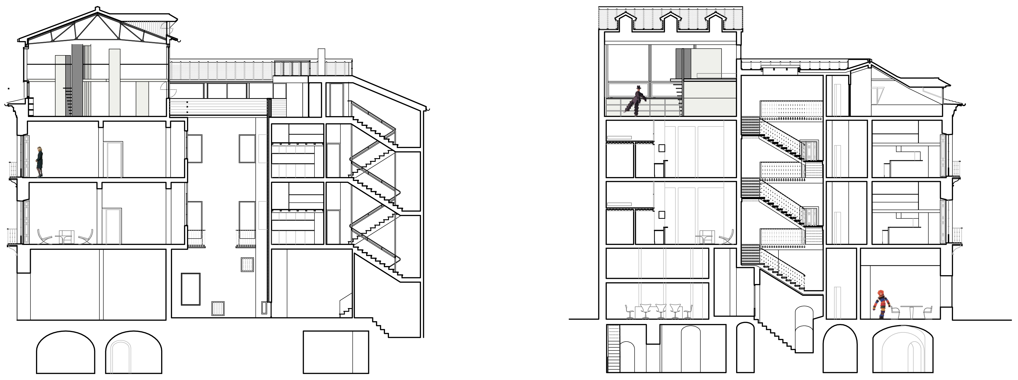
Rehabilitación de un edificio de 1775 para realización de viviendas. La clave funcional del proyecto es la incorporación de un segundo núcleo de comunicación vertical, que permite una distribución óptima de las viviendas en planta ajustándolas al tamaño mínimo permitido por el grado de protección del edificio. Las viviendas se conforman desde un núcleo de usos (cocina, baño y armarios) que jerarquiza distintos sectores y los relaciona entre ellos. En planta tercera, la eliminación de un tramo de cubierta permite crear terrazas que desahogan el carácter interior habitual en buhardillas. Los forjados, con madera en buen estado, pero con resistencia insuficiente, se refuerzan mediante una capa colaborante de hormigón aligerado, ofreciendo una solución de refuerzo muy económica que permite conservar las vigas vistas y ganar altura libre.

Architects: Beriot Bernardini Arquitectos

Client: Promotora GAVIR

Categories: Building Refurbishments

Project Type: Residencial Colectivo

Country: Spain

Budget: 1900000 €

Surface: 2400 M2

Execution Year: 2003

Plano Plano