13 Lofts, Valliciergo (Madrid)

2008
Image
Image
Image
Image
Image
Image
Image
Image
Image
Image
Image
Image
Image

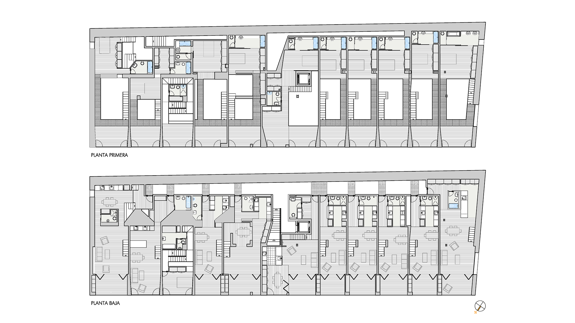
El edificio industrial objeto del proyecto es un prisma casi rectangular de 50x16 m que dispone de 5 plantas hacia la calle Beatriz Galindo y 7 hacia la calle Valliciergo(Madrid). En dicho espacio se ubicaba una antigua fábrica de pan de 1020m2 de superficie, que se reconvierte en 13 viviendas tipo loft. Se propone potenciar el carácter diferencial de las viviendas tipo loft a través del juego con las proporciones de su espacio, aprovechando la generosa altura libre, y otorgando a las viviendas unas proporciones inusuales. Así la vivienda base es una tira alta y profunda, donde el ancho viene definido por la crujía estructural existente. En fachada se aprovecha la altura libre para abrir una terraza que ofrece intimidad a la vivienda, disponiéndose sobre ella un altillo como desahogo funcional. Toda la fachada se acristala completamente buscando el máximo de iluminación y potenciando la focalidad direccional del espacio.

Architects: Beriot Bernardini Arquitectos

Client: Promotora GAVIR

Categories: Building Refurbishments

Project Type: Residencial Colectivo

Country: Spain

Budget: 1250000 €

Surface: 1020 M2

Execution Year: 2008

Plano Plano Plano